トップページ北九州市八幡西区馬場山東1丁目 

販売物件情報

  • 販売物件リストを見る
  • 物件情報を印刷する
  • プリンタの設定で「背景を印刷する」と設定しないと「背景画像」が印刷されないことがあります。印刷の際には、必ず「背景を印刷する」設定にしてください。

北九州市八幡西区馬場山東1丁目 

物件情報

価格 1,680万円(↓13.8%値下がり

この物件のお支払い例

頭金0円/ボーナス払い0円

1,680

46,452


※上記支払例の借入条件:金利0.975%、借入総額1,680万円、借入期間35年

購入と同時にリノベーションした場合のお支払い例

頭金0円/ボーナス払い0円

プラン内容
浴室 洗面化粧台 キッチン トイレ
プラン総額

193


購入と同時なら支払いの負担は少なくてすみます!

51,792


※上記支払例の借入条件:金利0.975%、借入総額0万円、借入期間35年
※上記支払例には工事費を含んでおりません。

画像

所在地・交通

所在地 北九州市八幡西区馬場山東1丁目 
最寄駅 筑豊電鉄線 楠橋 徒歩分数
最寄バス停 馬場山入口 徒歩分数 8分
小学校校区 北九州市立池田小学校 中学校校区 北九州市立木屋瀬中学校

※学校区は住所から自動判定したものであり、保証できる情報ではございません。正確な学校区はお問い合わせ下さい。

お問い合わせフォームはこちら

「人型アイコン」を地図上にドラッグすることで『Google Street View』に切り替わります。

※地図上の「対象地」は「〒807-1131 福岡県北九州市八幡西区馬場山東1丁目」の場所を指しています。実際の場所ではない場合がございます。詳しくはお問い合わせください。

お問い合わせフォームはこちら

物件概要

種目 中古一戸建住宅
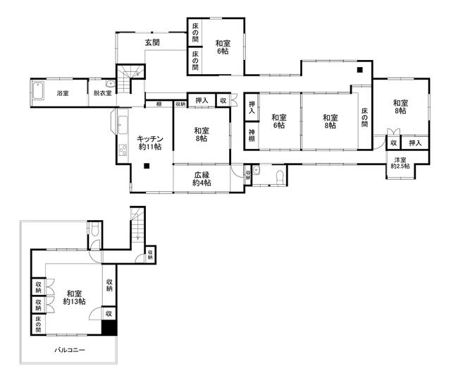
間取り 6SLDK 間取り内訳
土地面積 456.86㎡ 私道面積
建物面積 239.35㎡ 建物構造規模 木造 2階建
築年月(竣工月) 1976年2月 駐車場 有 
建ぺい率/容積率 50%/60% 都市計画 市街化区域
接道状況 南東7.5m 公道    
地目 宅地
土地権利 所有権 地勢 平坦
用途地域 第一種低層住居専用地域
現況 空家 取引態様 媒介
建築確認番号

取引条件等

引渡し 即時

その他

設備 IHクッキングヒーター、駐車場2台分
特徴
諸条件・相談
情報登録日 2022年11月11日 情報更新予定日 2025年11月1日
物件番号 98690

485

非公開物件を見るなら今すぐ!「無料会員登録」

LINEで住宅ローンの無料相談をする


ページの先頭へ

Copyright(C) ハウジングプラザ中古住宅専門店 All Rights Reserved.