販売物件情報
北九州市小倉北区熊谷3丁目
物件情報
| 価格 | 1,250万円(↓5.3%値下がり) |
|---|
この物件のお支払い例
頭金0円/ボーナス払い0円
1,250
34,562
※上記支払例の借入条件:金利0.975%、借入総額1,250万円、借入期間35年
※上記支払例の借入条件:金利0.975%、借入総額0万円、借入期間35年
※上記支払例には工事費を含んでおりません。
| 画像 | |
|---|---|
|
|
|
所在地・交通
| 所在地 | 北九州市小倉北区熊谷3丁目 | ||
|---|---|---|---|
| 最寄駅 | 日豊線 南小倉 | 徒歩分数 | |
| 最寄バス停 | 西鉄バス 蒲生入口 | 徒歩分数 | 7分 |
| 小学校校区 | 北九州市立南丘小学校 | 中学校校区 | 北九州市立南小倉中学校 |
※学校区は住所から自動判定したものであり、保証できる情報ではございません。正確な学校区はお問い合わせ下さい。
「人型アイコン」を地図上にドラッグすることで『Google Street View』に切り替わります。
※地図上の「対象地」は「〒803-0864 福岡県北九州市小倉北区熊谷3丁目」の場所を指しています。実際の場所ではない場合がございます。詳しくはお問い合わせください。
物件概要
| 種目 | 中古一戸建住宅 | ||
|---|---|---|---|
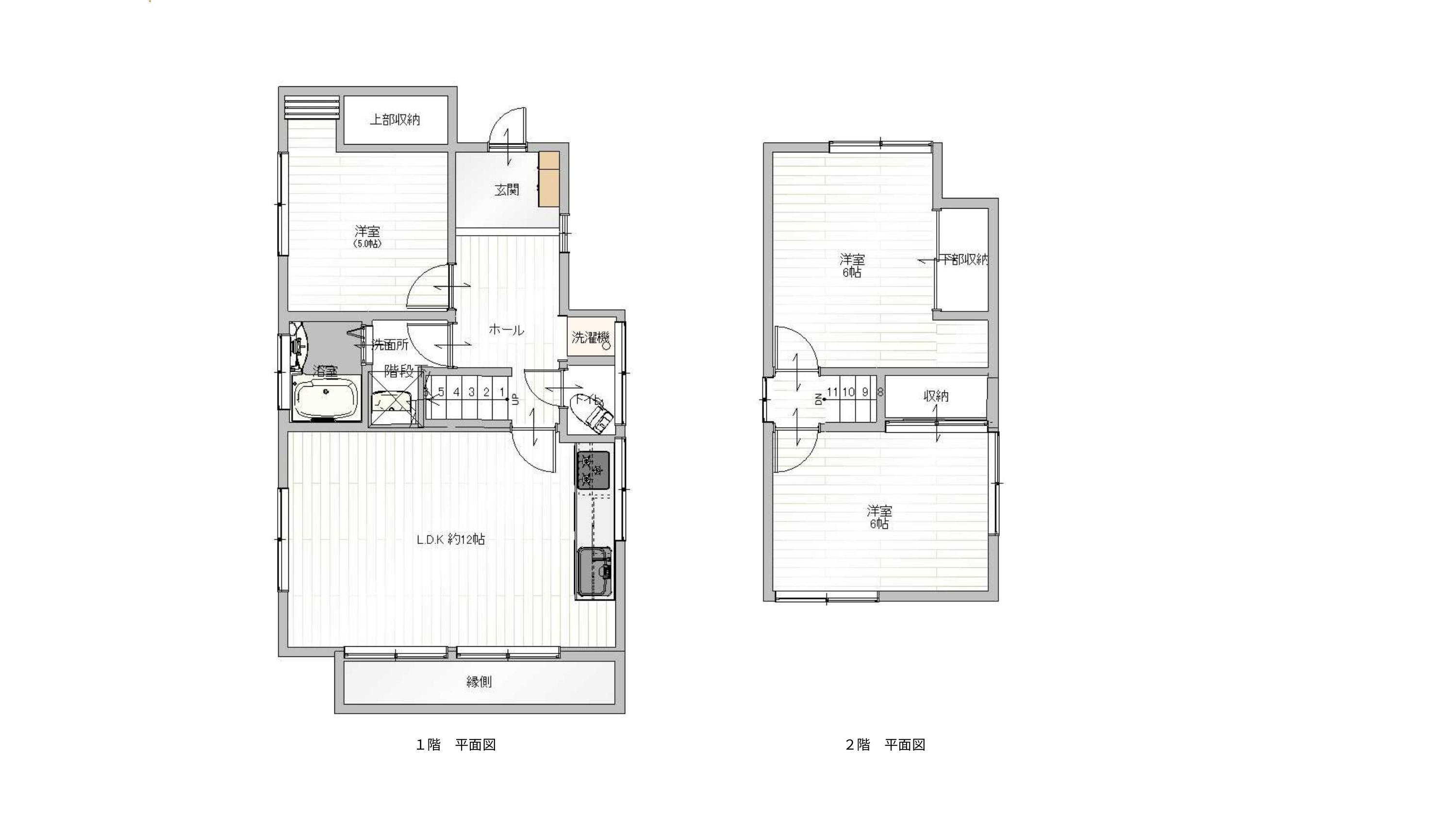
| 間取り | 3LDK | 間取り内訳 | DK12畳 洋5畳 洋6畳 洋6畳 |
| 土地面積 | 126.36㎡ | 私道面積 | |
| 建物面積 | 66.24㎡ | 建物構造規模 | 木造 2階建 |
| 築年月(竣工月) | 1978年12月 | 駐車場 | 有 |
| 建ぺい率/容積率 | 50%/80% | 都市計画 | 市街化区域 |
| 接道状況 | 北東4.4m 公道 接面3m 一方道路 | ||
| 地目 | 宅地 | ||
| 土地権利 | 所有権 | 地勢 | 平坦 |
| 用途地域 | 第一種低層住居専用地域 | ||
| 現況 | 所有者居住中 | 取引態様 | 媒介 |
| 建築確認番号 | 第1051号 | ||
取引条件等
| 引渡し | 相談 |
|---|
その他
| 設備 | 追焚機能、システムキッチン、電気、上水道、下水道、モニタ付インターホン、庭、駐車場2台分、駐車場3台分、上水道、下水道、電気 | ||
|---|---|---|---|
| 特徴 | |||
| 諸条件・相談 | |||
| 情報登録日 | 2025年6月27日 | 情報更新予定日 | 2025年12月10日 |
| 物件番号 | 119321 | ||



























































